Préserver la structure


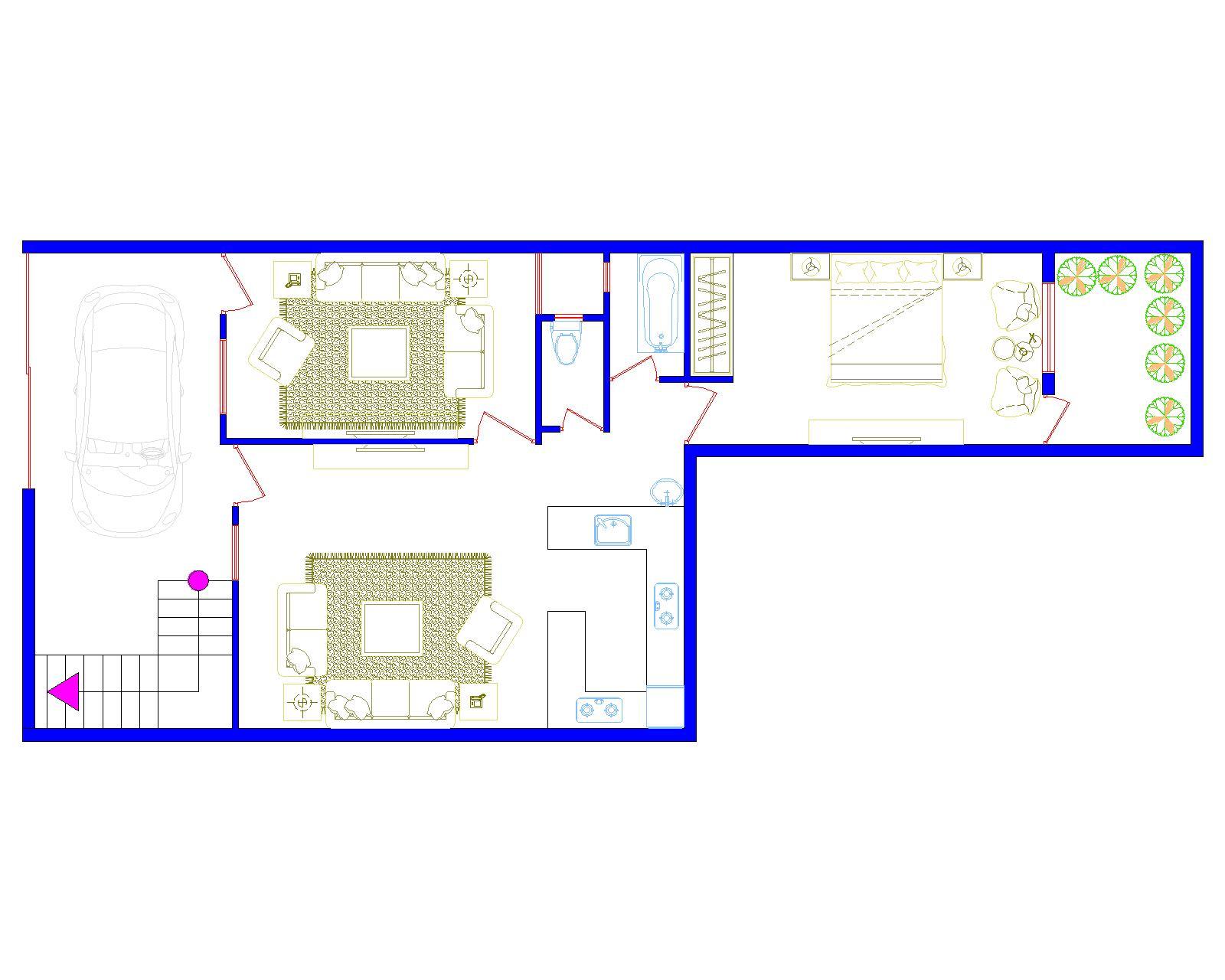
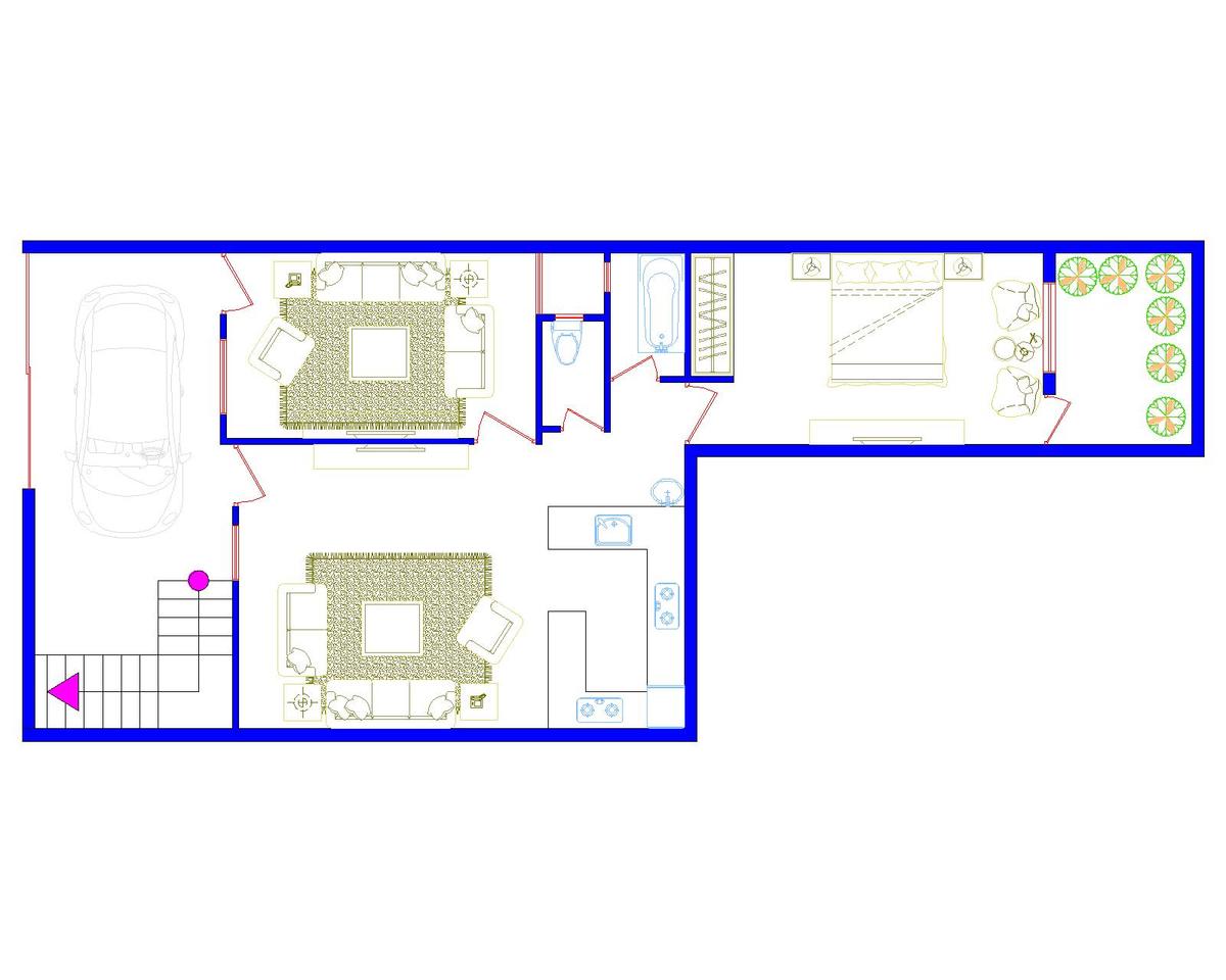
The photo captures an overhead view of a modern, brightly lit apartment interior, possibly taken at night during spring. The scene is dominated by clean lines and a minimalist aesthetic with a "modern fusion" feel. The expansive living area features plush white sofas arranged around a central, large white rug, with the entire room floored in a pristine white carpet. The walls are painted a neutral, soft hue, reflecting the ambient light. Adjacent to the living space, a compact kitchen boasts sleek white cabinetry, contrasted by tiled fixtures. The entrance area also features a carpet, hinting at a welcoming transition. A hallway leads to a bathroom with a bathtub and toilet, and further on, a bedroom with a neatly made bed and two bedside tables. Staircase with a visible height of 17 centimeters is also a prominent feature, leading downwards, suggesting an underground or basement level, and all doors are clearly delineated throughout the floor plan. The overall impression is one of an orderly, contemporary dwelling.